




Proprietate cu potențial excelent – zonă ultracentrală, Oradea
Oradea
160.000€
Camere
6
Suprafata utila
124 mp
Suprafata construita
150 mp
Etaj
Parter
Bai
2
An constructie
1950
- ID:P714
- Nr. camere:6
- Nr. dormitoare:4
- S. utila:124.00 mp
- S. terase:8.00 mp
- S. utila totala:132.00 mp
- S. construita:150.00 mp
- Comp.:Decomandat
- Etaj:Parter
- Nr. bucatarii:1
- Nr. bai:2
- An constructie:1950
- Structura:Caramida
- Tip imobil:Casa/Vila
- Orientare:Sud
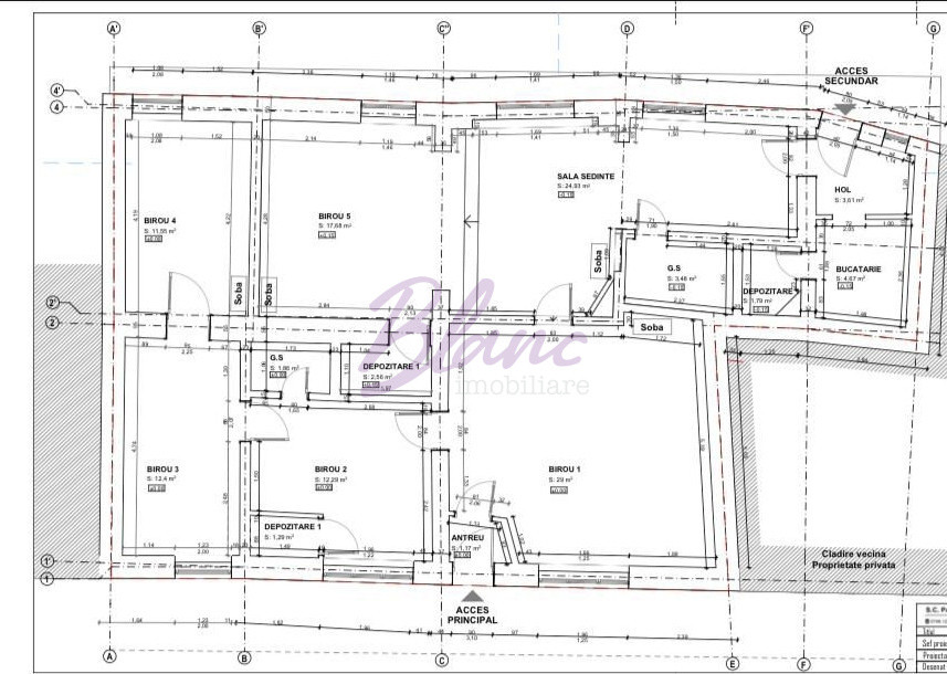
Descriere
Situată într-o locație deosebită, această proprietate oferă vizibilitate excelentă și acces rapid către toate punctele de interes din centrul orașului. Datorită poziționării strategice și compartimentării flexibile, se pretează pentru o varietate de destinații – de la reședință personală până la activități comerciale sau servicii.
🔹 Suprafață utilă: 124 mp
🔹 Cota parte de teren: 212 mp
🔹 Compartimentare actuală:
4 camere
Living
1 bucătărie
1 baie
Terasă
2 boxe pentru depozitare
🔹 Înălțimea camerelor: 5 metri – oferă posibilitatea etajării interioare și valorificării volumetriei
🔹 Acces dublu:
Din stradă
Din curte comuna – ceea ce permite recompartimentarea în două unități independente, cu intrări separate
Utilități disponibile:
Apă
Electricitate
Canalizare
Gazul este la limita proprietății
Este deja depusă documentația pentru renovarea fațadei
📌 Important: Imobilul necesită renovare totală, dar oferă o bază solidă și versatilă pentru un proiect de reamenajare deosebit, într-o zonă cu potențial ridicat de creștere a valorii.
📞 Contactează-ne pentru detalii suplimentare și vizionare!
O investiție inteligentă într-o zonă de top a Oradiei.
Citeste mai mult
🔹 Suprafață utilă: 124 mp
🔹 Cota parte de teren: 212 mp
🔹 Compartimentare actuală:
4 camere
Living
1 bucătărie
1 baie
Terasă
2 boxe pentru depozitare
🔹 Înălțimea camerelor: 5 metri – oferă posibilitatea etajării interioare și valorificării volumetriei
🔹 Acces dublu:
Din stradă
Din curte comuna – ceea ce permite recompartimentarea în două unități independente, cu intrări separate
Utilități disponibile:
Apă
Electricitate
Canalizare
Gazul este la limita proprietății
Este deja depusă documentația pentru renovarea fațadei
📌 Important: Imobilul necesită renovare totală, dar oferă o bază solidă și versatilă pentru un proiect de reamenajare deosebit, într-o zonă cu potențial ridicat de creștere a valorii.
📞 Contactează-ne pentru detalii suplimentare și vizionare!
O investiție inteligentă într-o zonă de top a Oradiei.
Specificatii
Curent
Apa
Canalizare
Aer conditionat
Usa intrare Metal
Eva Fazakas
0774463984
Esti interesat de aceasta proprietate ?