




Apartament ultracentral la casă – str. Roman Ciorogariu, Oradea
Oradea
199.000€
Camere
3
Suprafata utila
105.50 mp
Etaj
Parter
Bai
1
- ID:P676
- Nr. camere:3
- Nr. dormitoare:1
- S. utila:105.50 mp
- Comp.:Semidecomandat
- Etaj:Parter
- Nr. bucatarii:1
- Nr. bai:1
- Tip imobil:Casa/Vila
- Regim inaltime:D+P
Descriere
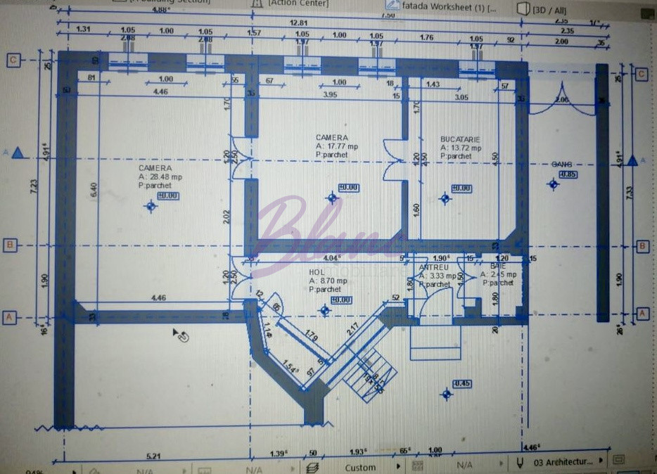
De vânzare apartament ultracentral situat la casă, pe strada Roman Ciorogariu, Oradea. Proprietatea ocupă întregul front stradal (13 ml) și beneficiază de o poziție excelentă, la câțiva pași de Piața Unirii.
Date principale:
• Suprafață utilă totală: 105,50 mp
– Parter: 74,5 mp
– Demisol (subsol înălțat): 31 mp, complet utilizabil
• Cota de teren: 186/941 mp
• Fațadă reabilitată integral
• Posibilitate de mansardare (ideal pentru extinderea spațiului)
• Apartamentul este pregătit pentru renovare – permite recompartimentare sau amenajare după preferințe
Primul apartament din imobil, cu expunere stradală completă, potrivit atât pentru locuință, cât și pentru birou, cabinet sau destinații comerciale care necesită vizibilitate.
Pentru detalii suplimentare sau vizionare, nu ezitați să ne contactați.
Citeste mai mult
Date principale:
• Suprafață utilă totală: 105,50 mp
– Parter: 74,5 mp
– Demisol (subsol înălțat): 31 mp, complet utilizabil
• Cota de teren: 186/941 mp
• Fațadă reabilitată integral
• Posibilitate de mansardare (ideal pentru extinderea spațiului)
• Apartamentul este pregătit pentru renovare – permite recompartimentare sau amenajare după preferințe
Primul apartament din imobil, cu expunere stradală completă, potrivit atât pentru locuință, cât și pentru birou, cabinet sau destinații comerciale care necesită vizibilitate.
Pentru detalii suplimentare sau vizionare, nu ezitați să ne contactați.
Specificatii
Curent
Apa
Canalizare
CATV
Fibra optica
Bucatarie Nemobilata
Nemobilat
Curte comuna
Oana Beldean
0756494332
Esti interesat de aceasta proprietate ?